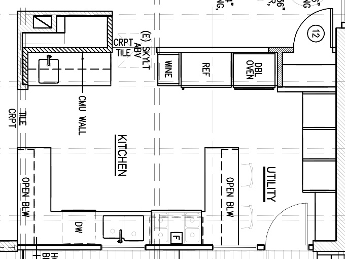
With the kitchen we knew we wanted to stay within the existing footprint because of the roof line implications as well as the way the central CMU stack would hinder our ability to truely open up the space, but that doesn’t mean there aren’t areas of improvement. We can still take the wall out between the dining room and kitchen to bring the views from the rear of the house into the kitchen. We could also remove the main powder room bath that was basically in the kitchen and move that to the new wing. This would gain us a bit of space. Rick concurred that there wasn’t a ton of flexibility within our requirements. But we were all aligned there was still a huge opportunity to improve the functionality and aesthetics.
We decided to also focus on electric appliances instead of gas to be a bit more environmentally friendly. In the PNW we have a higher percentage of our power generated by hydro than many other areas around the country. In Sydney we’ve moved to induction and really like the quick heating and cooling. It’s also pretty easy to clean which fits our low maintenance philosophy.
On the layout we pretty much defaulted to the sink under the window as the anchor decision. This meant the placement of the dishwasher was set as well. That left our cooking and prepping options to be mostly towards the north side of the kitchen. We wanted to leverage the views out the back which then dictated the direction of the counter seating. In many ways this kitchen designed itself, slowly revealing with each decision what made most sense for the next decision. One key element we agreed on was that in order to maintain the openness of the space we weren’t going to do upper cabinets on the outer wall. This would allow the light from the back to be unblocked as you worked at the counter. We found a beautiful slate blue 3×6 ceramic tile at Bedrosian’s that we both fell in love with immediately and worked with Laurie’s glass collection. We’ll be doing a vertical stack bond to counter the horizontal lines of the CMU block. Bonus was that we got it on close out and paid pennies on the dollar!


After investigating cabinet styles we narrowed our vendor search to just a couple of options. We decided that the best fit for us was working with Tim King of Greenhome Solutions in Seattle. He had a great sense of what we were trying to accomplish. We wanted a kitchen that would be comfortable in a mid century home but wasn’t beholden to the time period. After evaluating our options we landed on using a maple ply for the boxes with a walnut veneer and a contrasting grey laminate to help define the main kitchen yet seperate the pantry areas. The doors will be frameless so the ply will be visible on the top and bottom, but not on the vertical lines, and the inserts are from Hafele which are absolutely outstanding. We also wanted a single visual line at the top of the cabinet level instead of following the sloping ridge line. Lots of space for bubble glass, if needed.
Tim was super great at doing variations so we could really see how the space was going to be utilised. He had some great suggestions with the north wall and appliance wall layouts.




We ended up getting a Bosch appliance package that included the induction cooktop and went with integrated appliances to maintain the continuity of the cabinets. We also locked on white terrazzo tile floors and a white quartz with a mild gloss to avoid fingerprinting for the counters. We’ve also gone to simplified window set-ups to remove the mullion utilising a casement set-up to take advantage of the views. Now it’s just waiting for demo and starting the build!